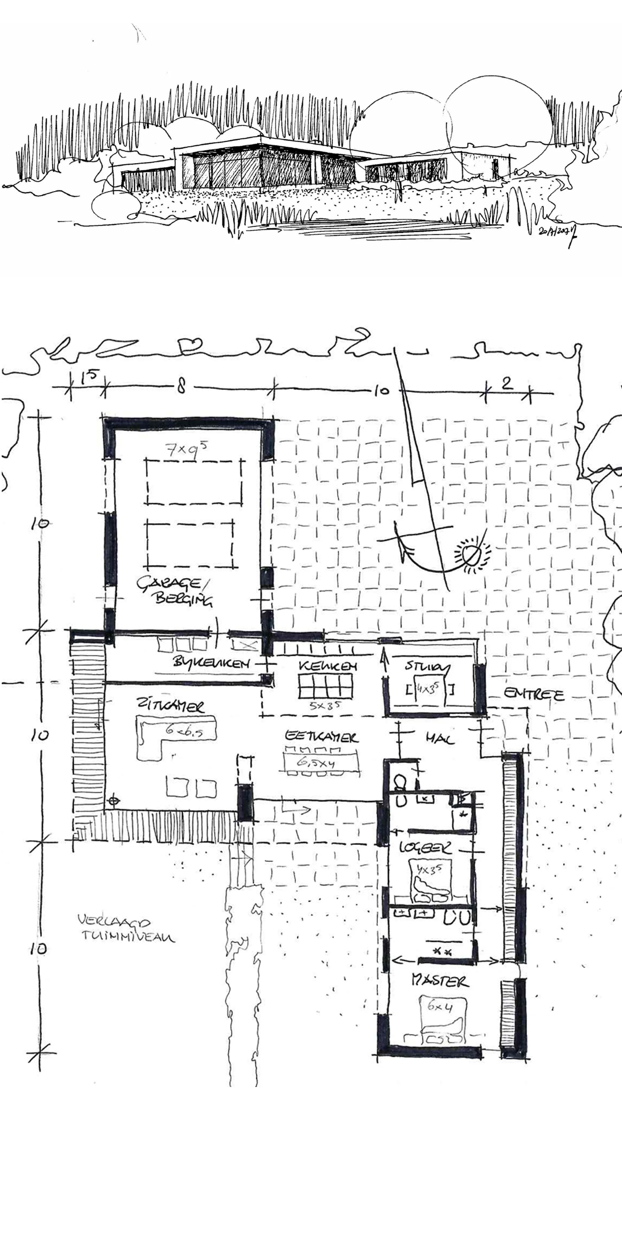
Waterlelie 13

Categorie
Woningen
Locatie
Terneuzen

Levensloopbestendige villa met een tuingericht woonprogramma terwijl het brede raam vanuit de keuken/werkkamer naar de entreehof een welkomstgebaar vormt. Woning is gerealiseerd in staalframebouw.